GÖKKENT TE SATILIK KONUT ARSASI

Paylaş:    Karşılaştır
775.000 TL Kredi Hesapla
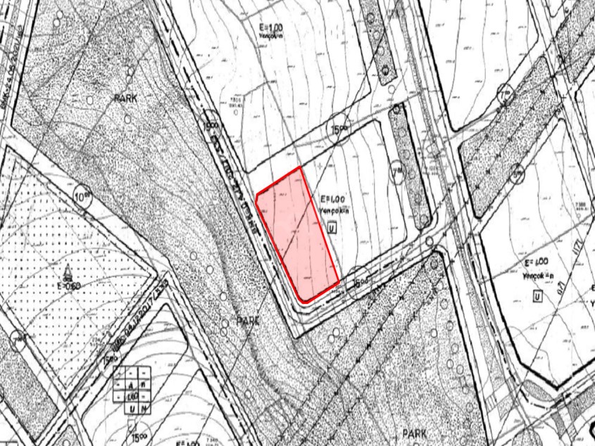
Kayseri - Melikgazi - Gökkent

 AÇIKLAMA

2756 m2 İÇERİSİNDE 410m2 Sİ SATILIKTIR 

KONUT İMARLI TEMİZ ARSADIR. 

beklemede vazgeçti

  • İlan No5412
  • Yetki Belge No36639
  • İlan Tarihi9 Şubat 2024 Cuma
  • KategoriSatılık Arsa
  • İmar DurumuVar
  • Brüt Alan410 m²
  • Net Alan410 m²
  • Tapu DurumuHisseli
  • TakasHayır
  • Kat KarşılığıHayır
  • Kullanım DurumuBoş
 Yazdır

 HARİTADA İLAN ARA
Aradığınız Gayrimenkulü Bulamadınız mı ?
Emlak talep formu ile başvuruda bulunun size en uygun gayrimenkulü bulmanıza yardımcı olalım.

Döviz Kurları

  •  Dolar 42,4946
  •  Euro 49,1733
  •  Sterlin 56,2258

 EN ÇOK BAKILANLAR

  • UĞUREVLER DE SATILIK MÜSTAKİL EV
    UĞUREVLER DE SATILIK MÜSTAKİL EV
    700.000 TL
  • CIRGALAN MERKEZDE MAZAKALAND YAKINI SATILIK ARSA
    CIRGALAN MERKEZDE MAZAKALAND YAKINI SATILIK ARSA
    TL
  • ERKİLET DERE MAH SATILIK ARSA   YATIRMLIK FIRSAT
    ERKİLET DERE MAH SATILIK ARSA YATIRMLIK FIRSAT
    TL
  • MALATYA YOLUNA SIFIR SATILIK ARSA
    MALATYA YOLUNA SIFIR SATILIK ARSA
    1.100.000 TL
  • HACILAR EVLİ BAHÇE
    HACILAR EVLİ BAHÇE
    TL

Tüm güncel ilanlarımıza aşağıdaki butonlardan ulaşım sağlayabilirsiniz

 Hunat Mah. Zenneci Sokak Mullaoğlu İş Merkezi 14/D Melikgazi Kayseri
  (0352) 231 30 04    05332189113

Bizi Sosyal Medya'dan Takip Edin.

Altay Gayrimenkul Emlak San. Tic. Ltd. Şti.

Whatsapp Destek